Quadrilocale in vendita

Monza, Via Mornerina - Monza Ovest
€ 250.000
4 locali 4 locali
110 Mq 110 Mq
2 bagni 2 bagni

Quadrilocale in vendita

Monza, Via Mornerina - Monza Ovest

Descrizione annuncio

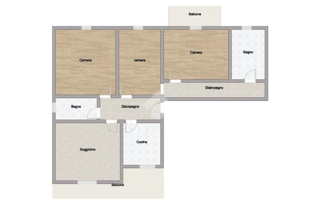
Zona San Fruttuoso - Ampio appartamento con cucina abitabile e posto auto coperto

In zona San Fruttuoso, proponiamo in vendita un ampio appartamento di circa 110 mq, situato al piano rialzato di un edificio con solo quattro unità abitative.

L'abitazione offre spazi ampi e ben distribuiti: l'ingresso conduce a un luminoso soggiorno, cucina abitabile, entrambi affacciano su un balcone con vista sul giardino condominiale. La zona notte comprende due camere matrimoniali, di cui una con balcone privato, oltre a una cameretta.

A servizio dell'appartamento si trovano due bagni finestrati, uno con vasca e uno con doccia.

L'immobile è dotato di impianto di aria condizionata, per un clima ideale in ogni stagione. All'esterno, un curato giardino condominiale offre uno spazio verde condiviso tranquillo e piacevole, mentre un posto auto coperto e riservato aggiunge ulteriore comodità.

Questa soluzione rappresenta un'ottima opportunità per chi cerca una casa spaziosa e funzionale in una zona servita e ben collegata.

Mostra tutto

Nelle vicinanze

Trasporto pubblico Trasporto pubblico
Sesto 1º Maggio F.S.
Sesto 1º Maggio F.S.
2,5 Km
Sesto San Giovanni
Sesto San Giovanni
2,5 Km
Monza
Monza
2,9 Km
Villa Ghirlanda (Cinisello Balsamo)
Villa Ghirlanda (Cinisello Balsamo)
2,2 Km
Monte Ortigara (Cinisello Balsamo)
Monte Ortigara (Cinisello Balsamo)
2,2 Km
Ricariche auto elettriche Ricariche auto elettriche
EnelX EVA+ Q8Easy - Cinisello Balsamo
820 m
Eneldrive Ananas A4
1,2 Km
LIDL Muggiò
1,6 Km
Sesto San Giovanni Casiraghi | EnelX
1,7 Km
Penny Market
1,8 Km
Scuole Scuole
Scuola Primaria Vittorio Alfieri
750 m
Collegio della Guastalla
970 m
Scuola Secondaria di Primo Grado Albert Bruce Sabin
1,2 Km
Scuola Secondaria di Primo Grado Bartolomeo Zucchi
1,4 Km
Scuola Secondaria di Primo Grado Sandro Pertini
1,5 Km
Farmacia Farmacia
Farmacia Comunale n. 1
850 m
Farmacia Comunale n. 5
1,3 Km
Farmacia
1,4 Km
Farmacia Romagna
1,4 Km
Comunale n. 8
1,6 Km
Ospedali Ospedali
Ospedale Bassini
2,8 Km
Supermercati Supermercati
Esselunga di San Fruttuoso
820 m
Il Gigante
1,0 Km
Primo
1,3 Km
Lidl
1,6 Km
Carrefour Market
1,7 Km
Negozi Negozi
Pessina
710 m
Negozi
850 m
Just Outlet
1,1 Km
Il Papero Rosso
1,4 Km
Il Forno Moderno
1,4 Km
Bar Bar
Zoo Club
660 m
Caffè Sudan
1,2 Km
Loft American Bar
1,3 Km
Bar Alexander
1,6 Km
Bar della Pesa
1,7 Km
Ristoranti Ristoranti
L'Angolo
250 m
Amalfi
630 m
Da Jonas
700 m
A modo mio
1,1 Km
Il Pollino
1,1 Km
Mostra tutto

Caratteristiche

Rif.:
61133858
Piano:
Ammezzato di 1
Totale piani:
1
Posti auto:
1
Balconi:
2
Camere da letto:
3
Mostra tutto
Prezzo Prezzo
€ 250.000
Rata mutuo Rata mutuo
€ 1.192 / mese
Spese annue Spese annue
€ 1.000
Proponi il tuo prezzoProponi il tuo prezzo

Classe Energetica

D
D
D
D
D
D
D
D
D
EP globale non rinnovabile:
176.50 kW h/m² anno
EP globale rinnovabile:
8.73 kW h/m² anno
EP invernale del fabbricato:
EP estiva del fabbricato:
Anno di costruzione:
1970
Riscaldamento:
Autonomo
Tipo impianto:
A radiatori
Tipo alimentazione:
Metano

Ti interessa visionare l'immobile?

Fissa un appuntamento  Fissa un appuntamento

Richiedi informazioni

Clicca su Leggi per aprire l'informativa
* Questi campi sono obbligatori

Calcola il tuo mutuo

Semplice e senza impegno
Anticipo

( % )
Mutuo

( % )

pochi semplici passi

inserisci i tuoi dati
Questionario completato
Grazie per aver richiesto un appuntamento senza impegno con un nostro Consulente del Credito e Assicurativo.

Hai inserito correttamente tutti i dati necessari e a breve riceverai una e-mail con un link da convalidare per inviare i tuoi dati.
Affiliato
Studio R.d.f. Sas
Via Risorgimento, 4 20900 Monza (MB)

Il nostro staff


  • Morena Barluzzi
    Collaboratrice

  • Angelica Sabato
    Coordinatrice

  • Gabriela Ada Rosafio
    Affiliata

  • Clodiana Odette Zanella
    Coordinatrice
Via Risorgimento, 4 20900 Monza (MB)
Zona: Monza Ovest
Mostra su mappa
Orari: dal lunedì al venerdì 9:00-12:30-15:00-20:00; sabato 9:00-15:30; domenica su appuntamento.
Affiliato
Studio R.d.f. Sas
Via Risorgimento, 4 20900 Monza (MB)

2026 Tecnocasa Franchising S.p.A. - P. IVA 08365160152 - Via Monte Bianco 60/A 20089 Rozzano (MI). Ogni agenzia ha un proprio titolare ed è autonoma. Privacy policy | Policy utilizzo | Cookie policy